Bilocale completamente ristrutturato - Bardolino (ref.1159)

Posizione centralissima

Da Luglio 2026, affittasi per uso turistico luminoso appartamento bilocale completamente ristrutturato, situato a pochi passi dal centro di Bardolino e dal lago.

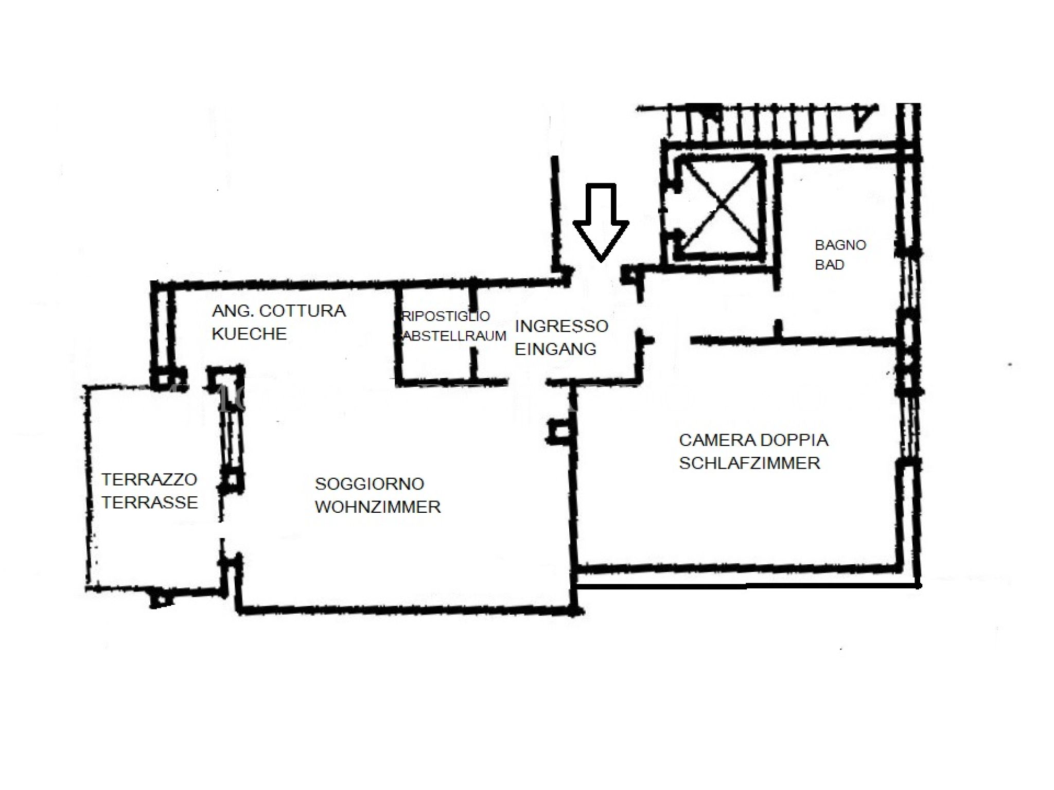
L’immobile, posto al secondo piano servito da ascensore, è composto da ingresso, soggiorno con divano letto, angolo cottura, terrazzo, ampia camera matrimoniale, bagno con doccia e pratico ripostiglio.

Al piano seminterrato è presente una cantina. Completa la proprietà un posto auto condominiale.

La posizione centrale ma tranquilla rende questa soluzione ideale per trascorrere piacevoli soggiorni sul Lago di Garda.

Classe energetica: G – 177,77 kWh/m²/anno.

Maggiori informazioni?

Telefonaci +39 045 62.12.610
oppure compila la richiesta:



.