Villa con Piscina e Vista Lago - Garda (ref.3120)

Nuova costruzione di lusso

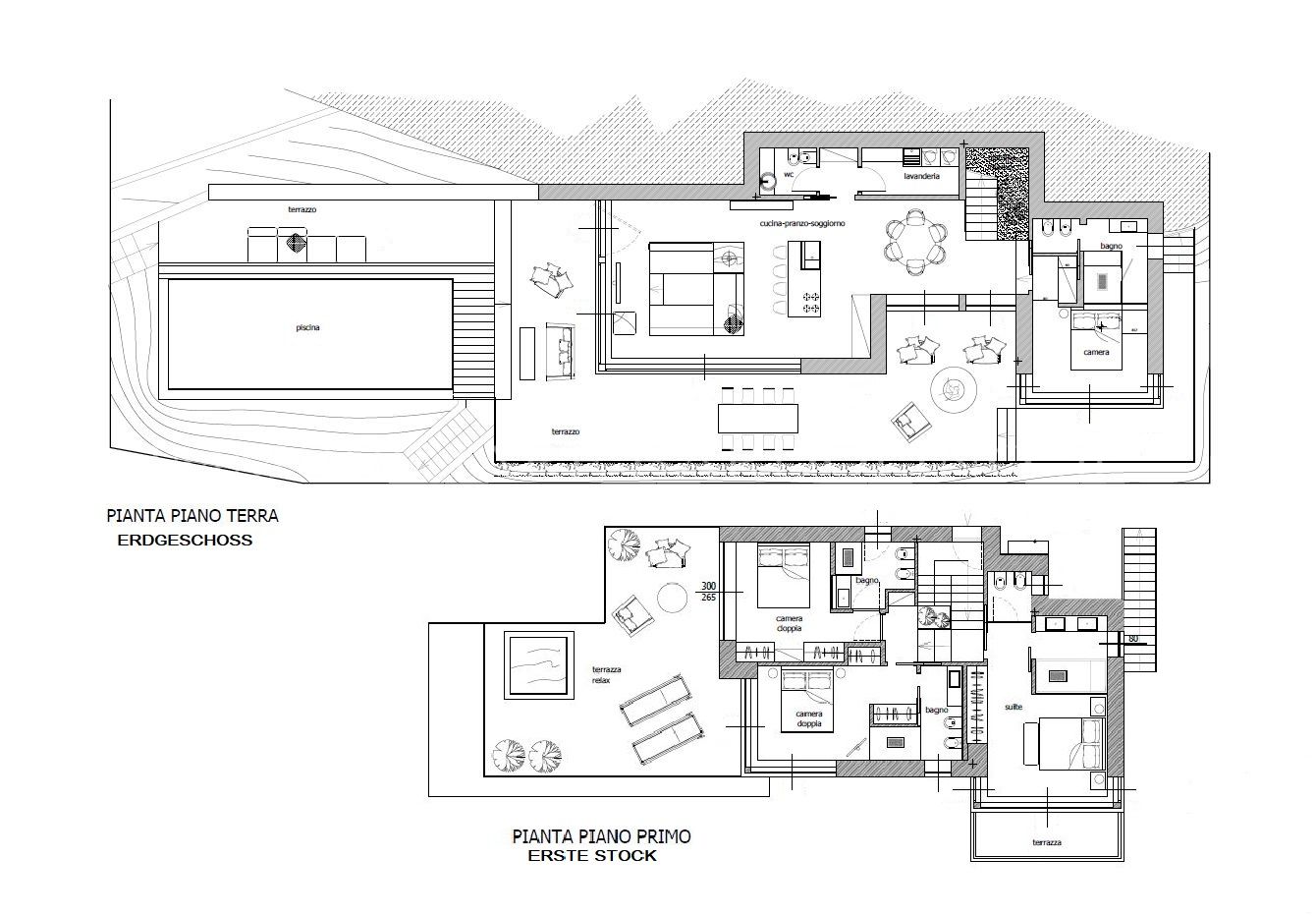
Garda - Esclusiva villa singola in fase di costruzione, in posizione panoramica con bellissimi affacci sul lago e su Garda. Disposizione: Piano terra: ampio soggiorno con cucina a isola e accesso alla veranda con piscina privata, camera doppia, bagno con doccia, lavanderia, wc di servizio. Piano primo: tre camere doppie, ognuna con bagno privato di design, accesso alla terrazza panoramica con vasca idromassaggio. Due posti auto in garage e ulteriori parcheggi esterni. Finiture di alto pregio.
Classe Energetica: "A4"

Maggiori informazioni?

Telefonaci +39 045 62.12.610
oppure compila la richiesta:



.